Subvencionat pel Departament de Territori, Habitatge i Transició Ecològica. Direcció General de Canvi Climàtic i Qualitat Ambiental, l’Ajuntament de Bescanó, amb el suport del Consell Comarcal del Gironès, construeix pèrgoles solars en 3 emplaçaments diferents. En total sumen 432,40 m2 d’ombreig i una producció fotovoltaica de 37,8 Kw.
Els 3 emplaçaments són els següents:
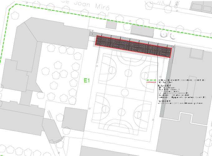
– Pèrgola al CEIP Dr. Sobrequés, de 179,20 m2
– Pèrgola a la urb. Mas LLunès, de 100,80 m2
– Pèrgola al Parc del Polivalent, de 152,40 m2”
Pèrgola al CEIP Dr. Sobrequés.
Pèrgola a la urbanització de Mas LLunès
Pèrgola i fotovoltaica del Polivalent


